Inspirée de l’architecture espagnole, cette maison modulaire en acier offre un mélange unique de style et de fonctionnalité. Initialement livrée en deux modules, sa conception permet d’ajouter facilement des modules supplémentaires pour répondre aux besoins croissants. Son excellente isolation, avec une valeur U de 0,15 W/m²K, assure des conditions de vie confortables toute l’année.
Les éléments intérieurs et extérieurs de la maison sont entièrement personnalisables, ce qui permet aux propriétaires de l’adapter à leurs goûts et à leurs besoins spécifiques. Le délai de livraison de la maison est d’environ trois mois et elle peut être assemblée rapidement, en 3 à 5 jours. Le design s’inspire de l’architecture du sud de l’Europe, créant un espace lumineux et chaleureux. Cette maison modulaire est idéale pour une petite famille, ce qui en fait une location de vacances parfaite ou une charmante maison d’hôtes.
De plus, il nécessite des fondations très simples, ce qui simplifie le processus d’installation initial et en fait un choix accessible pour beaucoup.
Délai de livraison : 12-15 semaines
Montage : 3 à 5 jours
Toute l’année
Norme clé en main
Spécification
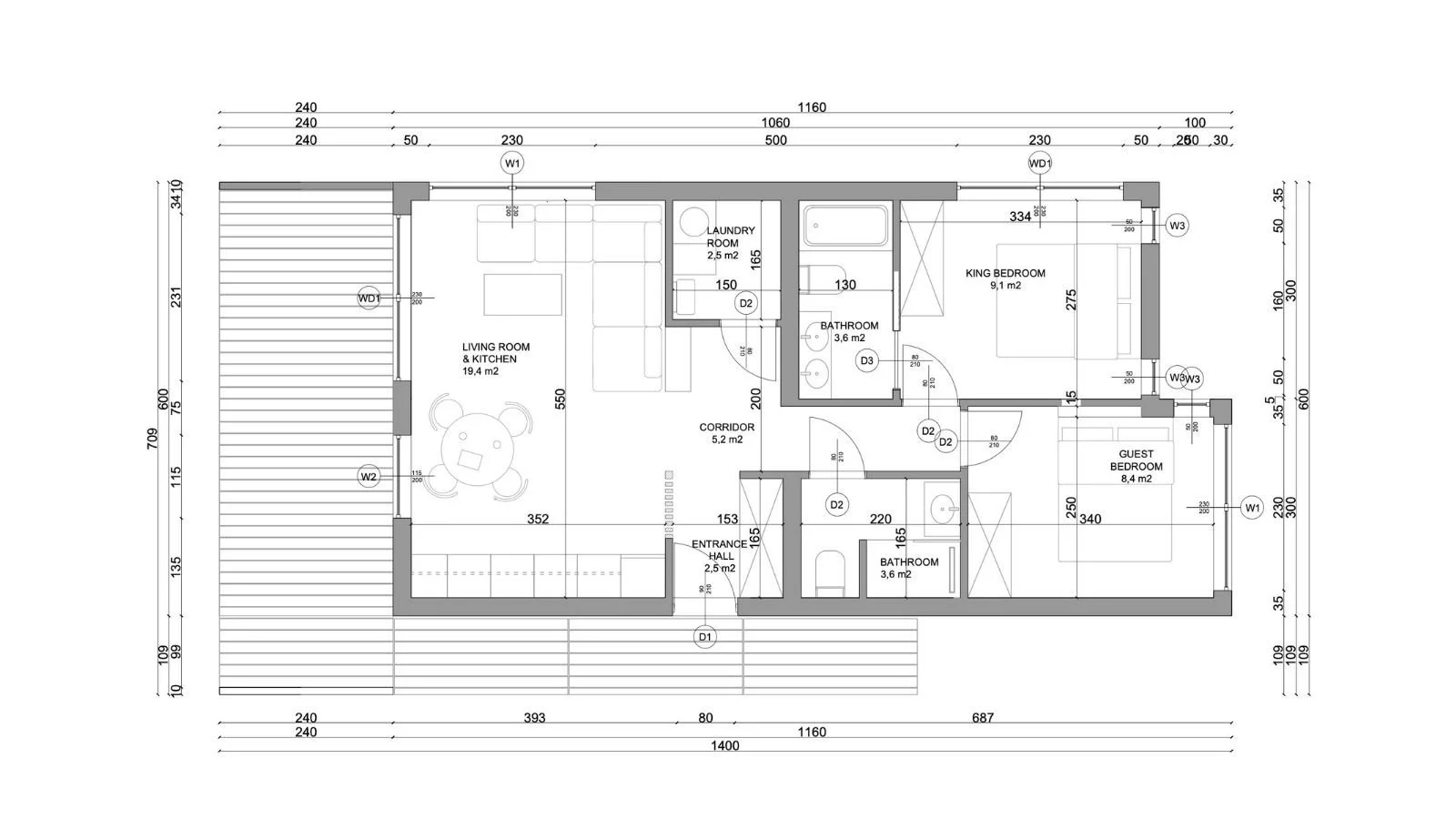
Composition : 2 chambres, 2 salles de bains, séjour avec coin cuisine, couloir, buanderie
Dimensions extérieures : longueur 11,6 m, largeur 6,0 m, hauteur 3,2 m
Isolation : PUR, U=0,15 W/m²K
Fenêtres : Aluminium, 3 vitrages
Chauffage : plancher chauffant électrique, pompe à chaleur air-air
Façade : enduit
Murs intérieurs : panneaux muraux

Avis
Effacer tous les filtresIl n’y a pas encore d’avis.